トップページ  >>  建物情報

  • 物件概要
  • お部屋情報
  • アクセス情報

物件概要

物件名称つなぐ和楽久
物件の類型サービス付き高齢者向け住宅
敷地面積1204.76㎡ (登記簿上)
建物賃貸借面積967.63㎡
構造・規模木造準耐火構造 地上2階建
所在地広島県広島市西区己斐中一丁目10-10-12
交通電車・JR山陽本線「西広島駅北口」より約600m
徒歩約7分
総戸数22戸  他に事務室、リビング・ダイニング(食堂)
間取り1K 25.01㎡
居室概要1K(25.01㎡)
?設備 / 浴室、トイレ、インターホン、ナースコール(居室・浴室・トイレ)、エアコン、ミニ冷蔵庫、IHキッチン、洗面所、下駄入、クローゼット
共有施設玄関ホール、リビング・ダイニング(食堂)
建物竣工2014年
運営事業主体株式会社つなぐ
一階平面図

一階平面図PDFはこちらからダウンロードできます

 

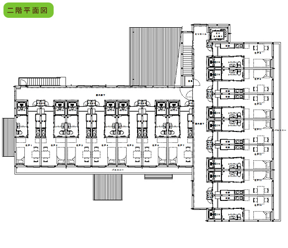
二階平面図

二階平面図PDFはこちらからダウンロードできます

 

 

お部屋情報

青枠で囲まれた文字をクリックすると写真が表示されます。

  • 室内廊下室内廊下
  • 玄関玄関
  • 浴室浴室
  • 収納収納
  • 廊下廊下
  • IHキッチンIHキッチン
  • 洗面台洗面台
  • お手洗いお手洗い
  • 居室居室

 

アクセス情報

電車・JR山陽本線「西広島駅北口」より約600m 徒歩約7分